Javna nabava za projekt Rekonstrukcija i dogradnja Dječjeg vrtića Josipdol službeno je završena! Nakon pregleda i ocjene ponuda, općinska načelnica donijela je odluke o odabiru izvođača radova i dobavljača opreme. Radove na rekonstrukciji zgrade vrtića provodit će tvrtka AQUATERM d.o.o., a tvrtka PROELEKT d.o.o. bit će dobavljač opreme za ovaj projekt.
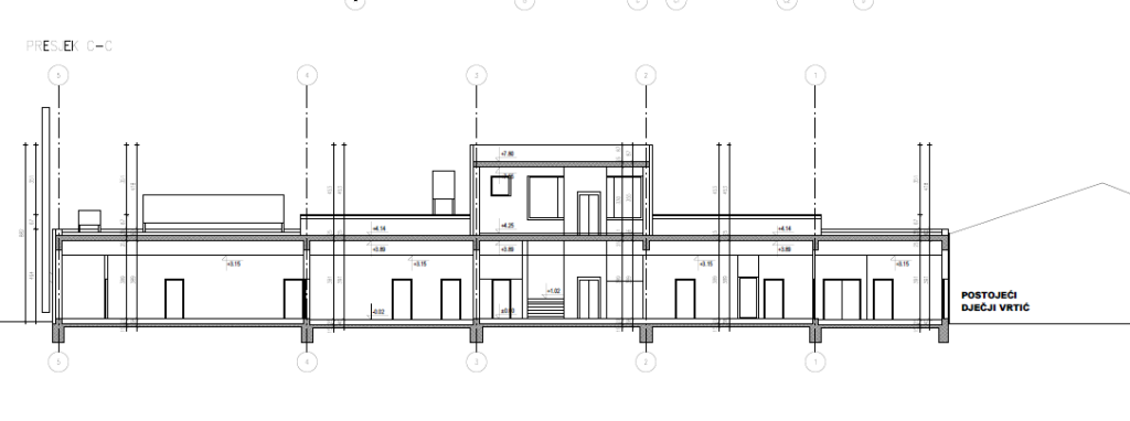
Projektom je predviđena dogradnja postojećeg vrtića novim prostorom, uz osiguranje tople veze matičnog dijela i buduće dogradnje. Također će se postojeći prostori vrtićke kuhinje rekonstruirati u prostoriju opće namjene. Navedeni prostori bit će povezani novoprojektiranim zajedničkim ulaznim prostorom, iz kojeg će se pristupati i postojećem i dograđenom dijelu vrtića.
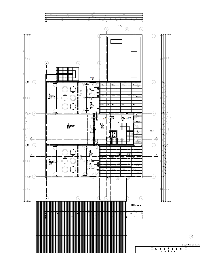
Dograđen dio vrtića sastojat će se od prizemlja i kata. U prizemlju dograđenog dijela vrtića nalazit će se sobe administracije, ravnatelja, odgojno-obrazovnih radnika, sanitarije posjetitelja i osoblja, gospodarski prostori (kuhinja, praonica i glačaonica, garderobe i sanitarije, ured ekonoma, soba za spremačicu, spremišta i toplinska podstanica) te dvije skupne sobe, svaka s vlastitom garderobom i sanitarijama i vanjskim prostorima za igru. Dograđeni i postojeći prostori bit će opremljeni suvremenom opremom.
Vanjski prostor oko dograđenog i rekonstruiranog dječjeg vrtića dobit će šest novih parkirnih mjesta za potrebe vrtića, uz kolni pristup, a parkirališne površine planiraju se kao proširenje ceste.
Realizacijom projekta ostvarit će se dogradnja, rekonstrukcija i opremanje postojećeg matičnog vrtića, uz povećanje prostornih kapaciteta za dodatne tri skupine u odnosu na trenutačne kapacitete Dječjeg vrtića Josipdol. Projektom su planirani dodatni kapaciteti za dva dnevna boravka za jasličku skupinu te jedan dnevni boravak za vrtićku skupinu.
Ukupna vrijednost projekta nakon provedene javne nabave iznosit će 3.239.092,46 EUR s PDV-om, od čega će radovi na rekonstrukciji i dogradnji Dječjeg vrtića Josipdol iznositi 2.757.626,31 EUR, a iznos za opremanje dograđenog i postojećeg prostora vrtića bit će 481.466,15 EUR. Ministarstvo znanosti, obrazovanja i mladih sufinancirat će ovaj projekt iznosom od 487.359,00 EUR.
Slijedi sklapanje ugovora o javnoj nabavi radova i opreme, uvođenje izvođača u posao te konačno – izvođenje radova! Veselimo se ostvarivanju ovog velikog projekta za bolju i ljepšu budućnost naših mališana i osiguravanje dodatnih radnih mjesta unutar Općine Josipdol!





